Ecco i progetti (non eccitanti) per il recupero di Palazzo Citterio, primo tassello della Grande Brera. Vince quello del rettore IUAV Amerigo Restucci: i cantieri al via in primavera, appena sciolto il nodo della verifica sul ribasso record

È forse tutta colpa del bando di gara, immaginiamo stringente e vincolante come sempre quando – almeno in Italia – si tratta di mettere mano ad un contesto storico. Non stupiscono per brillantezza ed originalità i tredici progetti arrivati a Milano per concorrere al restauro dell’ormai mitico Palazzo Citterio, acquisito oltre quarant’anni dallo Stato con […]

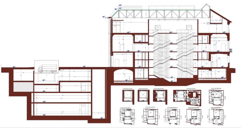
È forse tutta colpa del bando di gara, immaginiamo stringente e vincolante come sempre quando – almeno in Italia – si tratta di mettere mano ad un contesto storico. Non stupiscono per brillantezza ed originalità i tredici progetti arrivati a Milano per concorrere al restauro dell’ormai mitico Palazzo Citterio, acquisito oltre quarant’anni dallo Stato con l’idea di farne la sede per le collezioni novecentesche della Pinacoteca di Brera. E trasformatosi in buco nero, spazio obliato e dimenticato nel cuore della città; oggi simbolo del farraginoso tentativo di lancio del progetto Grande Brera. Tutte italiane le firme che hanno accolto l’invito, segno – chissà – della scarsa appetibilità dell’incarico: non ti aspettavi le archistar (se è per questo, ad ogni modo, latitano pure quelle nostrane), ma un’atmosfera leggermente più internazionale sì.
Si gioca da più parti con l’amplificazione illusoria degli spazi, ottenuta con un diffuso ricorso al vetro: lo fa con eclettica eleganza Lorenzo Berni, ma anche Italo Rota, forse il più efficace nello scardinare gli ambienti settecenteschi del palazzo con candidi graticci e boiserie. La palma del vincitore va invece, come annunciato mesi fa, al rettore dello IUAV Amerigo Restucci, con piazza d’onore assegnata a Michele De Lucchi: i loro progetti, insieme agli altri migliori undici tra la trentina in gara, sono ora esposti in Triennale; da marzo al MAXXI. Già, marzo. Mese previsto per l’assegnazione di un esecutivo gravato dalla verifica imposta per il ribasso offerto da Research Consorzio Stabile, l’impresa mandataria del progetto di Vespucci: un 38% di margine sul costo massimo dell’opera (stimato in poco meno di 15milioni di euro, spalmati su due lotti di lavori) che invita alla prudenza. Un nodo burocratico da sciogliere prima di avviare un cantiere destinato ad essere concluso nell’arco di due anni.

– Francesco Sala

Artribune è anche su Whatsapp. È sufficiente cliccare qui per iscriversi al canale ed essere sempre aggiornati

Francesco Sala

Francesco Sala

Francesco Sala è nato un mesetto dopo la vittoria dei mondiali. Quelli fichi contro la Germania: non quelli ai rigori contro la Francia. Lo ha fatto (nascere) a Voghera, il che lo rende compaesano di Alberto Arbasino, del papà di…

Scopri di più