Il nuovo Polo Bibliotecario culturale e creativo a Roma col progetto di Mario Botta
Un progetto di valorizzazione che prevede, negli spazi del Palazzo San Felice, la realizzazione di un polo in grado di ospitare circa 400mila volumi, oltre a diverse funzioni come un auditorium e sale di lettura
Nascerà dalla trasformazione e valorizzazione degli spazi di Palazzo San Felice a Roma il Polo Bibliotecario culturale e creativo. Il palazzo situato in via della Dataria 21, fu eretto sotto Pio IX da Filippo Martinucci nel 1864, e recentemente ospitava gli alloggi del personale della Presidenza della Repubblica. Nei giorni scorsi l’architetto Mario Botta ha presentato il progetto al Quirinale alla presenza del Presidente della Repubblica Sergio Mattarella e del Ministro dei Beni Culturali Alberto Bonisoli. Risale allo scorso anno la firma, da parte del Segretariato Generale della Presidenza della Repubblica e del Ministero per i Beni e le Attività Culturali, della convenzione per la valorizzazione del palazzo dove sarà trasferita la Biblioteca Nazionale di Archeologia e Storia dell’Arte di Piazza Venezia a Roma, favorendo la nascita di un Polo Bibliotecario culturale e creativo. La convenzione prevede che per 25 anni il Ministero per i Beni e le Attività Culturali abbia la concessione del complesso di San Felice, che resta comunque in dotazione del Quirinale.

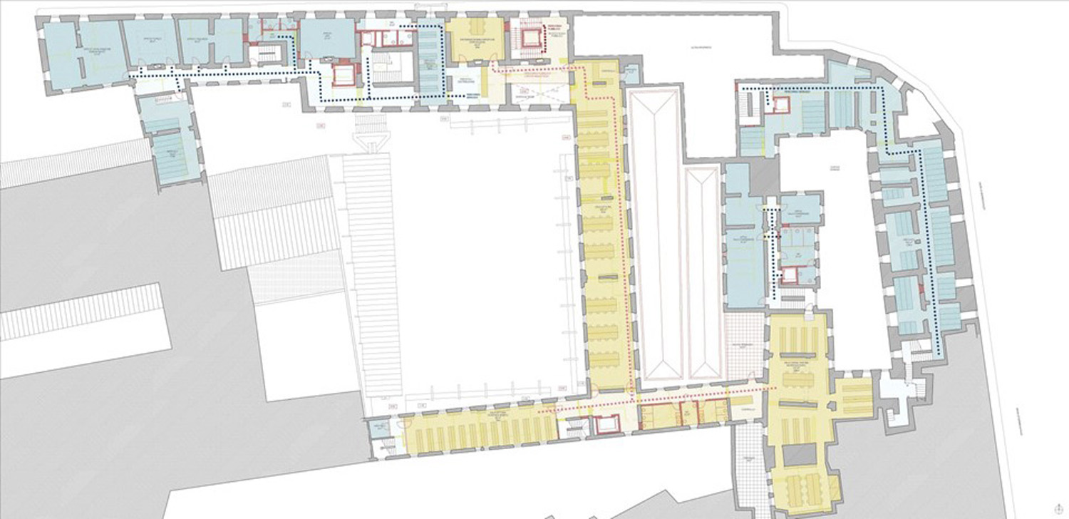
Schizzo del progetto, presentazione del progetto per il nuovo polo bibliotecario e culturale di Palazzo San Felice
IL PROGETTO ARCHITETTONICO
“Il progetto è affascinante”, ha dichiarato il Presidente della Repubblica, “non soltanto perché ha ricondotto a unità un complesso disarticolato di elementi che erano lì, casualmente messi insieme, ma perché rende perfettamente funzionale, rispetto all’obiettivo che si persegue, la soluzione”. Con una superficie di 6.000 mq il progetto di valorizzazione dell’architetto prevede, distribuiti sui cinque piani dell’edificio, sale di lettura, uffici, depositi, locali tecnici, zone espositive, uno spazio esterno per eventi e accoglienza. Circa 400mila volumi troveranno sistemazione su uno sviluppo di circa 14 km di scaffali. Infine, è previsto nel progetto un auditorium con una copertura trasparente, dotata di un sistema di schermatura, che consente l’ingresso zenitale dei raggi solari, e che potrà ospitare 350 persone. La corte viene ripensata per diventare uno spazio aperto, con un pergolato sul lato destro rispetto all’ingresso, dove potere studiare ma anche concedersi momenti di relax. Dopo la teca di Aymonino al Campidoglio, la “lanterna” di Fuksas a Via del Corso e la “serra” di Paolo Desideri dietro al Palazzo delle Esposizioni, sembra destinata ad atterrare nel complicato contesto del centro di Roma una nuova architettura contemporanea.
PROGETTO SAN FELICE. L’ULTIMO COMMENTO DEL MINISTRO FRANCESCHINI
Dopo due anni dal diffondersi della notizia, è avvenuta la cerimonia di avvio dei lavori della nuova “Biblioteca di Archeologia e Storia dell’Arte” di Roma, nel Fabbricato San Felice in via della Dataria, insieme all’arch. Mario Botta, al Segretario generale della Fondazione “Giorgio Cini”, all’architetto Renata Codello e alla Direttrice dell’Agenzia del Demanio, Alessandra Dal Verme. Collegato da remoto c’è stato anche l’attuale Ministro della Cultura Dario Franceschini, che ha così commentato: “Palazzo San Felice sarà un luogo aperto alla città come previsto dal progetto dell’architetto Botta. Non sarà soltanto un luogo conservazione ma un luogo di vita e di attività. Il Ministero si è impegnato nel reperire risorse e affiancare il Quirinale in questa progetto che rappresenta un grande messaggio al Paese”. E ha proseguito, “ecome previsto dall’accordo per la nascita della Fondazione verrà spostata lì, da Palazzo Venezia, la meravigliosa Biblioteca di Archeologia e Storia dell’Arte, una delle istituzioni più importanti del Paese. Ci sono più di 400 mila volumi, incunaboli, materiale fotografico, un archivio infinito che oggi si trova in spazi non adeguati dentro Palazzo Venezia. Insieme alla Direzione del nuovo museo autonomo di Palazzo Venezia e del Vittoriano abbiamo deciso, così, di valorizzarla e darle una nuova centralità per la città di Roma e per l’Italia. La nuova Biblioteca non sarà più soltanto un luogo per studiosi ma diverrà un luogo aperto per eventi e incontri, oltre che di studio e di ricerca. Si tratta di una grandissima operazione che parte oggi anche grazie alla volontà del Presidente Mattarella che ha voluto fare questo dono a Roma e a tutto il Paese”.
– Ilaria Bulgarelli
*Articolo aggiornato il 22/12/2021
1 / 18
2 / 18
3 / 18
4 / 18
5 / 18
6 / 18
7 / 18
8 / 18
9 / 18
10 / 18
11 / 18
12 / 18
13 / 18
14 / 18
15 / 18
16 / 18
17 / 18
18 / 18
Artribune è anche su Whatsapp. È sufficiente cliccare qui per iscriversi al canale ed essere sempre aggiornati